防爆電機軸承的拆卸與安裝
發布日期:2021年05月13日 信息來源:/ 點擊數:
防爆電機軸承的拆卸
(1) 用專用工具拆卸圖1所示為拆卸軸承的專用工具,拼合夾板套裝于軸上,夾板凸肩頂住軸承內圈,調整拉桿上的螺帽,使軸承內圈均勻受力,然后旋轉頂出螺桿,使軸承平穩地拉出來。
圖1 拆卸軸承的專用工具
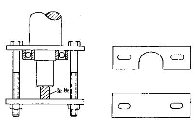
如無專用工具,亦可用圖2所示的簡單工具拉下。
圖2 拆卸軸承的簡單工具
(2)用銅棒和手錘拆卸 內徑較小的軸承,也可用圖3所示的方法敲出。敲擊時注意要使軸承內圈受力,敲打要均勻,不可偏敲一邊,也不可用力過猛,要逐漸敲出來。
圖3 用銅棒拆卸軸承
(3)加熱拆卸 如用上述方法不能卸下時,可將機油加熱到120攝氏度左右,用油壺澆淋在軸承內圈上,并用濕布包住軸,以免軸受熱膨脹。邊澆邊拉或用銅棒敲打,從開始澆油加熱開始,在3?5分鐘內就要將軸承拆卸出來,否則軸也受熱膨脹,就難于拆卸。
防爆電機軸承的安裝
(1)加熱法安裝軸承 如圖4所示,將軸承放在熱油中加熱到100℃(不要超過120℃,以免使軸承硬度降低),經10?15min取出,迅速往軸上套,有時只要一推軸承就能裝上,有時須在內圈處加一點壓力推入。熱套時要注意使軸承緊靠軸承臺階。
圖4 用機油加熱軸承
(2)用套筒或銅棒安裝軸承 按圖5或圖6所示的方法直接將軸承敲打進去。
圖5 用套筒安裝軸承
圖6 用銅棒安裝軸承
更多防爆電機產品知識請訪問防爆電機廠家官網:www.shuyouba.com 阿里巴巴旺鋪:https://nyfbdj168.1688.com/ 手機:15518435289 電話:0394-8687286 劉經理
相關閱讀:





